VIA NOSTRA SIGNORA DI LOURDES AD METRO CORNELIA
AURELIO Via Nostra Signora di Lourdes ad Metro Cornelia in…
€465.000
Via Cave di Peperino, Marino, Roma, Lazio, 00073, Italia
libero, Vendita
€245.000
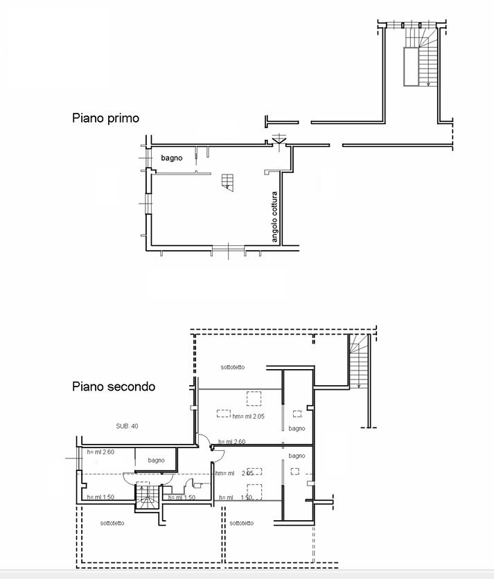
Marino nei pressi della Via dei Laghi e a pochi minuti dalla stazione proponiamo un appartamento in vendita finemente ristrutturato con materiali di pregio e di design. L’appartamento molto luminoso si sviluppa su due livelli, al primo piano troviamo un ampio salone con cucina a vista e un servizio, al piano superiore un disimpegno /studio e tre ampie camere ciascuna con servizio interno. Presenta porta blindata, infissi in Pvc con doppi vetri, pavimenti in parquet e aria condizionata in tutti gli ambienti, riscaldamento autonomo. All’interno dell’area di parcheggio chiusa da cancello c’è il posto auto pertinenziale. Volendo è facilmente possibile frazionare l’immobile in due unità. Prezzo € 245.000 mutuabili.
AURELIO Via Nostra Signora di Lourdes ad Metro Cornelia in…
€465.000
TRIESTE SOMALIA VIALE LIBIA proponiamo la vendita di un box…
€140.000
SAN CLETO APPARTAMENTO NUOVO